- SQFT
- BED
- BATH
- CAR GARAGE
-
Main
House Plan Description
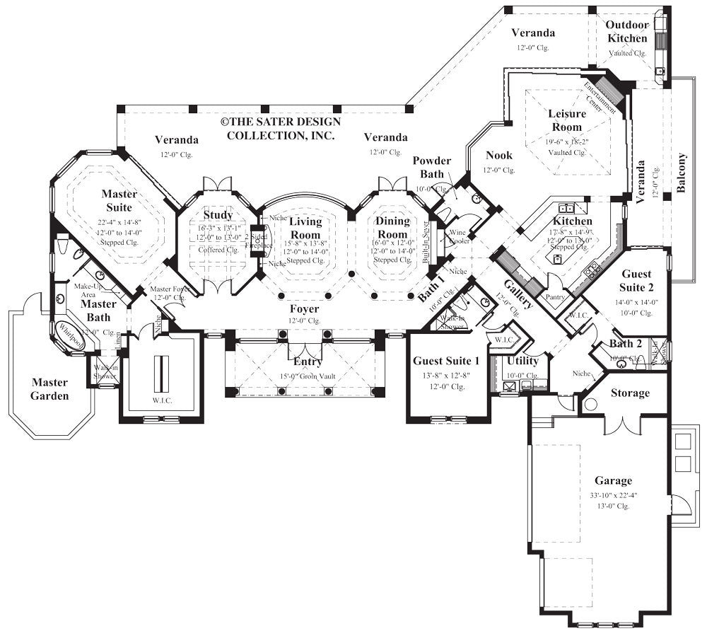
The Della Porta home plan exhibits a lovely Italian style flair. The home plan design boasts 3760 square feet of living area, with three bedrooms and three 1/2 bathrooms. Carved brackets and balusters, stucco, glass panels and shingles surround a triple-arch entry - a grand start for this spacious villa. Designed for 21-st century living, the interior creates flexible spaces that are not formal or self-conscious, but simply comfortable. The Della Porta has a slab/stem wall foundation.
The Della Porta is defined by triple arches, stately columns and magnificent views that extend beyond the veranda. Formal spaces provide an ambiance of elegance and comfort. The formal living room opens to the formal dining room and shares a two-sided fireplace with the study. The formal dining room features a stepped ceiling with a built-in server and extends out to the veranda. The well-organized kitchen with its stepped ceiling takes in natural light through the retreating glass walls of the leisure room and breakfast nook. Gatherings large and small may spill out onto the veranda where an outdoor kitchen facilitates meals alfresco.
A stepped ceiling highlights the Della Porta master suite, Enjoy the comforts of the spectacular private retreat separated from the secondary bedrooms. The master suite features a master foyer, large walk-in closet, whirlpool tub, walk-in shower, make-up area and a master garden. The study is conveniently located next to the master suite for easy access. The secondary bedrooms with their own baths are on the opposite side of the home away from the master suite. Each secondary bedroom features their own walk-in closet and walk-in shower.
Are you interested in having a custom home plan designed just for you? Then please visit Sater Group, Inc. and learn how we can design something for you.
Della Porta
The Della Porta home plan exhibits a lovely Italian style flair. The home plan design boasts 3760 square feet of living area, with three bedrooms and three 1/2 bathrooms. Carved brackets and balusters, stucco, glass panels and shingles surround a triple-arch entry - a grand start for this spacious villa. Designed for 21-st century living, the interior creates flexible spaces that are not formal or self-conscious, but simply comfortable. The Della Porta has a slab/stem wall foundation.
The Della Porta is defined by triple arches, stately columns and magnificent views that extend beyond the veranda. Formal spaces provide an ambiance of elegance and comfort. The formal living room opens to the formal dining room and shares a two-sided fireplace with the study. The formal dining room features a stepped ceiling with a built-in server and extends out to the veranda. The well-organized kitchen with its stepped ceiling takes in natural light through the retreating glass walls of the leisure room and breakfast nook. Gatherings large and small may spill out onto the veranda where an outdoor kitchen facilitates meals alfresco.
A stepped ceiling highlights the Della Porta master suite, Enjoy the comforts of the spectacular private retreat separated from the secondary bedrooms. The master suite features a master foyer, large walk-in closet, whirlpool tub, walk-in shower, make-up area and a master garden. The study is conveniently located next to the master suite for easy access. The secondary bedrooms with their own baths are on the opposite side of the home away from the master suite. Each secondary bedroom features their own walk-in closet and walk-in shower.
Are you interested in having a custom home plan designed just for you? Then please visit Sater Group, Inc. and learn how we can design something for you.
PLAN SPECS
Is this plan almost exactly the plan of your dreams? Sater Design can make it reality!
MODIFY THIS PLANBrowse Similar Home Plans
This is dialog box content
This is dialog box content
What Plan Format Should I Order?
At Sater Design, we’re all about creating your dream home and making the process as easy as possible for you. Therefore, the plan format you select will depend on your situation. For your convenience, we sell our plans in 3 basic plan formats: printed on Vellum paper, in electronic PDF file format, and electronic AutoCAD files. AutoCAD is the name of the program that is used to create the plans. There is no “correct” or “better” plan format, it all depends on your individual needs. Each plan format has its benefits and some are more versatile than others.
Print Vellum: The most popular plan format our customers order is the Print-Vellum format. This plan format gives you a set of plans printed on Vellum paper that you can show your builder. Copies can be made as needed– see the Plan Licensing Information page for more details. The Vellum paper is erasable (using a special architect’s eraser) so added notes or minor changes can be made to the plans if needed. The Vellum plan format is the most expensive to ship.
PDF Electronic: The second most popular plan format is PDF, which is an electronic file format. We email you the plan as a set of electronic PDF files. This plan format provides the most expedient way to receive the plans. Your local blue print shop can make prints as needed. Again, see the Plan Licensing Information page for more details on making copies. The PDF plan format is an electronic file, but it is not editable so changes can be more difficult to make.
CAD Electronic: If you need to make changes or alterations to the plan, you will need to order the plan in electronic AutoCAD plan format. Anyone with the AutoCAD program and knowledge of how to use it — which most builders do –will be able to open the files and make changes to them. Your builder or local blue print shop can make prints from the AutoCAD files (see the Plan Licensing Information page for more details). There AutoCAD files come on a USB flash drive and is shipped with your plan licensing information packet.
BACK TO TOP